Background
2671SB Naaldwijk

Tiendweg 2M

Verhuurd
  • 1995

** VERHUURD ** ---------------------------------------------------------- Op een zichtlocatie ligt deze bedrijfsruimte van ca 430 m² met ca 140 m² ka... Lees meer

Mask
Meer informatie?
Britt Rolff helpt je graag verder!
Meer informatie
Tiendweg 2M
Tiendweg 2M
Tiendweg 2M
Tiendweg 2M
Tiendweg 2M
Tiendweg 2M
Tiendweg 2M
Tiendweg 2M
Tiendweg 2M

Omschrijving

** VERHUURD **
----------------------------------------------------------

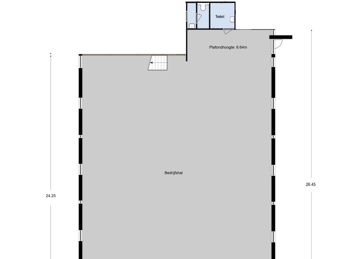
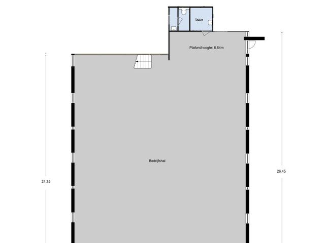
Op een zichtlocatie ligt deze bedrijfsruimte van ca 430 m² met ca 140 m² kantoorruimte en een royaal afsluitbaar buitenterrein. Voorzien van grote schuifdeuren en nette kantoorvoorzieningen is dit pand direct gebruiksklaar. Ideaal voor uiteenlopende bedrijfsactiviteiten dankzij de praktische indeling en ruime parkeergelegenheid.

Indeling
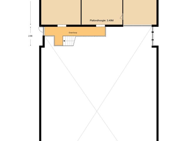
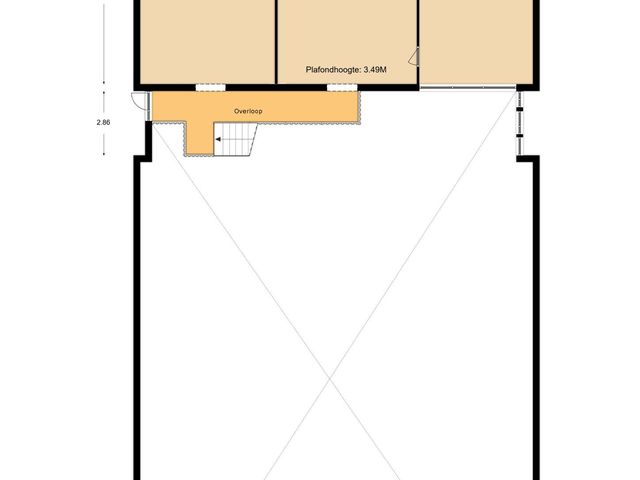
Op een uitstekend bereikbare locatie met veel zichtbaarheid bieden wij deze ruime en multifunctionele bedrijfshal aan van circa ca 430 m², inclusief een kantoorruimte van ca 140 m² op de eerste verdieping. Het geheel is gelegen op een groot, afsluitbaar buitenterrein waar ruimschoots plaats is voor parkeren, opslag of het laden en lossen van goederen. Er passen met gemak meerdere auto's op het terrein. Ideaal voor personeel, klanten of bedrijfswagens! De bedrijfshal is voorzien van grote schuifdeuren, wat het pand zeer geschikt maakt voor logistieke of productiegerichte activiteiten. De betonvloer, geïsoleerde daken met lichtstraten, zonnepanelen onderstrepen de kwaliteit van het object. Daarnaast is de hal uitgerust met verwarming, brandhaspels, een cv-gasinstallatie en optionele krachtstroom. De kantoorruimte op de eerste etage is netjes afgewerkt en beschikt over een toiletgroep, verlaagde plafonds met ingebouwde verlichting, dubbele beglazing en een eigen toiletruimte en keuken. Hierdoor is het kantoor comfortabel in gebruik en direct functioneel inzetbaar.

Locatie:
De bedrijfshal is gelegen aan de Tiendweg 2m in Naaldwijk, midden in het dynamische Westland en onderdeel van een goed bereikbaar en aantrekkelijk bedrijventerrein. De locatie biedt uitstekende verbindingen richting Den Haag, Rotterdam en de A20/A4, wat zorgt voor een vlotte aan- en afvoer van goederen. Dankzij de ligging nabij uitvalswegen is het pand zeer geschikt voor bedrijven die waarde hechten aan bereikbaarheid én representativiteit.

Bijzonderheden:
- Bedrijfsoppervlakte hal: ca 430 m²
- Kantoorruimte: ca 140 m²
- Bouwjaar: ca 1995
- Afsluitbaar buitenterrein voor parkeren, opslag of het laden en lossen van goederen
- Energielabel A met zonnepanelen en dubbele beglazing
- Cv-installatie en airconditioning
- Bestemmingsplan 'Kantoor' en na definitieve goedkeuring gemeente: fitnessactiviteiten

Huurvoorwaarden:
- Huurprijs € 6.900 per maand
- Service- en voorschotkosten € 100,- en € 900,- per maand (jaarlijks verrekend op basis van werkelijk verbruik)
- Huurperiode minimaal 3 jaar
- Waarborgsom 3 maanden huur
- Ingangsdatum in overleg (Q3 2025)
- ROZ-huurcontract inclusief bijbehorende algemene voorwaarden

Onderzoeksplicht huurder
Huurder wordt uitdrukkelijk gewezen op zijn eigen onderzoeksplicht ten aanzien van het voorgenomen gebruik van het object. Het is de verantwoordelijkheid van huurder om bij de gemeente of via de relevante bestemmingsplannen na te gaan of het beoogde bedrijfsdoel op deze locatie is toegestaan. Verhuurder aanvaardt geen enkele aansprakelijkheid met betrekking tot het gebruik van het object dat niet in overeenstemming is met het geldende bestemmingsplan. Huurder wordt geadviseerd zich vooraf goed te laten informeren over de toepasselijke regelgeving en eventuele beperkingen.
Toon meer

Kenmerken

Overdracht
Aangeboden sinds
13 juni 2025
Status
Verhuurd
Aanvaarding
In overleg
Bouw
Hoofdfunctie
Bedrijfsruimte
Soort bouw
Bestaande bouw
Bouwjaar
1995
Oppervlakten
Oppervlakte
430 m²
Bedrijfshaloppervlakte
430 m²
Indeling
Voorzieningen
Lichtstraten, krachtstroom, betonvloer, toilet en pantry
Energie
Energielabel
A
Omgeving
Bereikbaarheid
Bushalte op minder dan 500 m en Snelwegafrit op minder dan 500 m
Lokale voorzieningen
Ontspanning op 1000 m tot 1500 m, Restaurant op 1000 m tot 1500 m en Winkel op 1000 m tot 1500 m
Parkeergelegenheid
Parkeerplaatsen
10 niet-overdekte parkeerplaatsen

Locatie

Ik wil meer informatie

Laat je gegevens achter en wij nemen contact met je op.

Mask

Liever direct contact?

Wij zijn op werkdagen telefonisch bereikbaar van 08:30 tot 17:30 of stuur ons een WhatsApp

0174 - 419 000